Siirry sisältöön
YHTEYSTIEDOT
YRITYS
TUOTTEET
+
-
WC-Jakoseinät
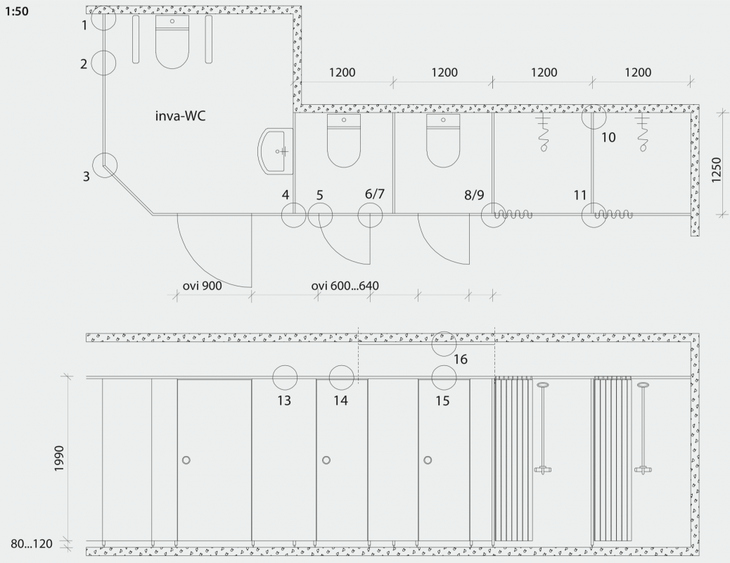
Jakoseinä pohjakuvat ja profiilit
Jakoseinä asennusohjeet
Suihkuseinät
Laminaattilevyt
Allastasot
Ikkunapenkit
Muut tuotteet
Laminaatin puhdistus ja hoito
Referenssejä
PALVELUT
YHTEYSTIEDOT
Jakoseinä pohjakuvat ja profiilit
TUOTTEET
WC-Jakoseinät
Jakoseinä pohjakuvat ja profiilit
Jakoseinä asennusohjeet
Suihkuseinät
Laminaattilevyt
Allastasot
Ikkunapenkit
Muut tuotteet
Laminaatin puhdistus ja hoito
Referenssejä